городской округ Нижний Новгород, Нижний Новгород, Нижегородский р-н, Большая Печерская ул, 26
Характеристика объекта
Тип сделки
продажа
Адрес
Нижний Новгород, Нижегородский р-н, Большая Печерская ул, 26
Этаж/Этажность
8/10
Назначение
свободного назначения
Площадь
38 м²
Ответственный за объект

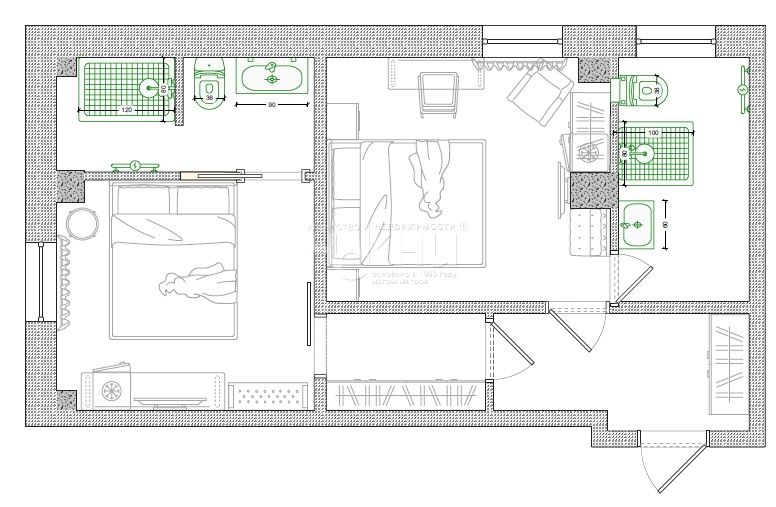
Большая Печерская, 26. Продаем просторное помещение (38,1 кв.м) с коммуникациями (вода и канализация внутри помещения), угловое, с тремя окнами, светлое и теплое, с правильной и рациональной планировкой, которое идеально подойдет для обустройства атмосферных апартаментов в самом центре Нижнего Новгорода с потрясающим видом из окон и массой достопримечательностей вокруг. В шаговой доступности Волжская Набережная, Кремль, колесо обозрения, гребной канал, Большая Покровская, бутики и рестораны, кофейни и супермаркеты, огромное количество точек притяжения для туристов. Помещение располагается в бизнес-центре А класса. В здании на первом этаже расположены 2 ресторана, wellness и бьюти-услуги.
Выгодное территориальное расположение апартаментов прекрасно подойдет для комфортного проживания в собственной квартире.
Данное помещение легко преобразуется в уютных 2 апартамента, уже есть проект. Можем выполнить чистовую отделку помещения по согласованному с вами дизайну по цене 30 000 р. за кв.м. Средняя суточная арендная плата за апартаменты в этом месте 6500 р. В месяц 195000 р. В собственности более 5 лет, просто продажа без покупки альтернатив. Звоните, пожалуйста, ответим на все вопросы.








